十五二十文化传媒公司
项目概述
项目名称: 十五二十文化传媒公司
项目地点: 北京市朝阳区
设计时间: 2022年
参与深度: 方案设计 + 软装设计 + 装修施工
建筑面积: 350㎡
项目类型: 办公,网络/科技
主要材料: 乳胶漆 / 地胶
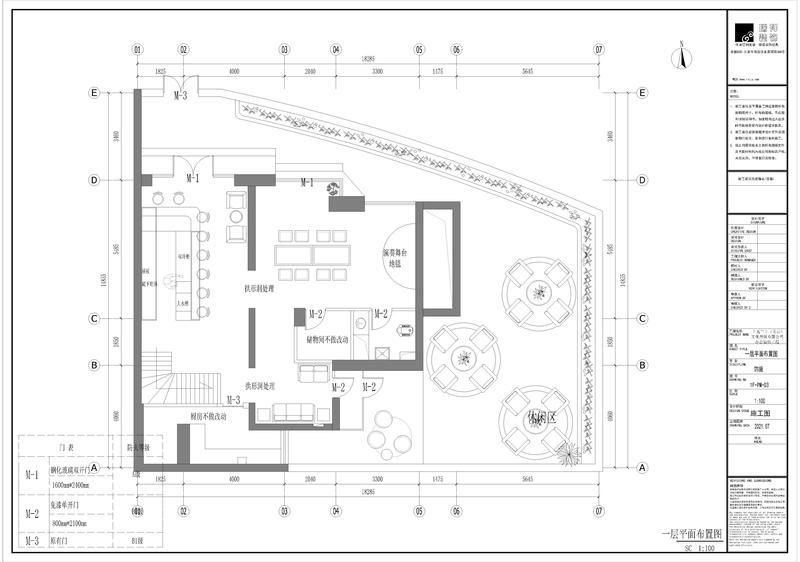
十五二十文化传媒办公设计
十五二十团队整体偏向年轻化,努力奋斗的同时也享受着生活。项目位于小区内,一层作为清吧白天对内员工提供休闲娱乐,晚上对外营业。在一天得工作结束后,把酒言欢放松自我好不快活。





版权声明:本站所有文章除特别标注授权发布外,其他文字内容均为原创,享有著作权保护,未经许可不得以任何形式进行转载(包括且不限于:媒体、网站、公众号等)。本文链接 -> 十五二十文化传媒公司
联·系·我·们
免费电话
400-081-8689